Lavery Mitchell

7 Lissadell Grove Portstewart, BT55 7FB

5 Bed Semi-detached House For Sale

SOLD

Print additional images & map (disable to save ink)

6W8A3008.jpg

Telephone:

028 95575 555

View Online:

www.laverymitchell.com/938666

Key Information

Address 7 Lissadell Grove Portstewart, BT55 7FB
Style Semi-detached House
Bedrooms 5
Receptions 1
Bathrooms 2
EPC Rating D62/D62
Status Sold
   

Features

  • Conveniently located 5-bedroom semi-detached chalet
  • Under planning application for conversion to HMO.
  • Currently mixed use as a residence & seasonal holiday let
  • Spacious living room with fireplace.
  • Contemporary kitchen with sliding patio doors and adjoining utility room.
  • First floor features four bedrooms and a stylish main bathroom.
  • Tarmac drive to the front & side of property
  • Generously sized rear garden, ideal for outdoor entertainment.
  • New Gas Central Heating with EPH Ember App smart phone controls.
  • High pressure system with thermostatic showers

Additional Information

Introducing an exceptional 5-bedroom semi-detached chalet ideally situated just off the Mill Road in Portstewart.

Currently undergoing planning application for a proposed change of use from dwelling to HMO, presenting an opportunity for enhanced investment returns upon approval.

Currently approved by the tourist board for self-catering accommodation, and recently utilized as an Air B&B.

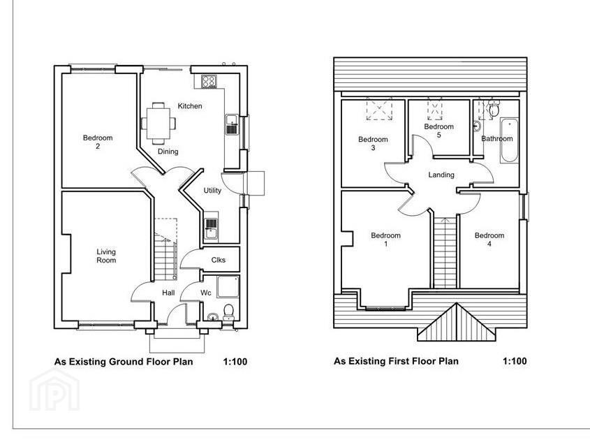
The property features a well-arranged layout across two floors. Upon entry, you're welcomed by a decorative hallway leading to a bright and spacious living room, complete with a fireplace and feature cast iron radiator. Adjacent to the main hallway are a shower room and cloakroom. Towards the rear, a contemporary kitchen floods with natural light through sliding patio doors, complemented by a convenient utility room. Additionally, a ground floor double bedroom provides versatile accommodation options.

Upstairs, four bedrooms await alongside a stylishly appointed main bathroom.

Outside, there is a tarmac drive to the front and side of the property, while the rear boasts a generously sized garden, perfect for outdoor entertainment.
Entrance Hallway
Porcelain tiled floor, cast iron radiator
Cloakroom
Hanging space, storage space, location for gas boiler & main fuse box
Ground Floor Shower Room
W/C, vanity unit, shower cubicle, heated towel rail, LED mirror
Living Room 4.88m x 3.35m (16'68 x 11'55)
Wooden flooring, Fireplace with surround, cast-iron inset and tiled hearth, cast iron radiator
Kitchen 3.66m x 3.66m (12'26 x 12'89)
Range of high & low level kitchen units, Formica worktop, stainless steel sink unit, 4 ring ceramic hob and electric under worktop oven, tiled flooring, sliding patio door leading to rear garden
Utility Room 2.74m x 1.22m (9'26 x 4'92)
Tiled flooring, stainless steel sink unit and drainer, floor space for appliances
Bedroom One (Ground Floor) 4.27m x 2.74m (14'82 x 9'72)
Laminate wooden floor, single radiator, Upvc double glazed window
First Floor Landing
Carpet
Bedroom Two (First Floor) 3.66m x 2.13m (12'86 x 7'68)
Laminate wooden floor, Upvc double glazed window
Bedroom Three (First Floor) 4.27m x 3.35m (14'62 x 11'59)
Laminate wooden flooring, Upvc double glazed window
Bedroom Four (First Floor) 3.35m x 2.44m (11'27 x 8'17)
Laminated wooden flooring, roof-light window
Bedroom Five (First Floor) 2.13m x 2.13m (7'95 x 7'17)
Laminated wooden flooring, roof-light window
Bathroom 3.05m x 185.01m (10'99 x 607)
Tiled floor, partially tiled walls, shower cubicle with chrome shower head, wall hung vanity unit incorporating wash hand basin, LED mirror, heated towel rail, hotpress
Outside (Front of property)
Tarmac driveway, boundary wall
Outside (Rear of property)
Rear garden laid in lawn with boundary wooden fencing to side a back, mature trees
  • Lavery Mitchell

    Lavery Mitchell

    028 95575 555

Photo Gallery

6W8A3008.jpg 6W8A2946.jpg 6W8A2952.jpg 6W8A2961.jpg 6W8A2940.jpg 6W8A2942.jpg 6W8A2926.jpg 6W8A2978.jpg 6W8A2982.jpg 6W8A2991.jpg 6W8A2921.jpg 6W8A2924.jpg 6W8A2905.jpg 6W8A2900.jpg 6W8A2898.jpg 6W8A2885.jpg 6W8A2831.jpg 6W8A2835.jpg 6W8A2887.jpg 6W8A2851.jpg 6W8A2862.jpg 6W8A2992.jpg 6W8A2995.jpg 6W8A2993.jpg 6W8A2997.jpg Floor Plans.jpeg EE Rating

Location

Visit www.laverymitchell.com for further details.