Lavery Mitchell

Site, Adjacent To, 11 Derrygarve Road, Newbridge, Magherafelt, BT45 8HA

Building Plot For Sale

Offers over £99,950

Print additional images & map (disable to save ink)

11DR-site plan.png

Telephone:

028 95575 555

View Online:

www.laverymitchell.com/1037771

Key Information

Address Site, Adjacent To, 11 Derrygarve Road, Newbridge, Magherafelt, BT45 8HA
Price Offers over £99,950
Land type Building Plot
Status For sale

Features

  • Prime site adjacent to 11 Derrygarve Road, Castledawson
  • Prestigious and sought-after address
  • Site extends to approx. 0.55 acres
  • Full Planning Permission in place
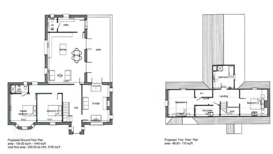
  • Permission for 4-bedroom chalet bungalow
  • Design includes detached garage
  • Planning reference: H/2013/0439/RM
  • Opportunity to build a dream home

Additional Information

For sale is a superb residential site adjacent to 11 Derrygarve Road, Newbridge, Magherafelt, BT45 8HA – a highly sought-after address renowned for its convenient location and attractive surroundings. Extending to approximately 0.55 acres, the site benefits from Full Planning Permission for a beautifully designed 4-bedroom, 2-reception room chalet bungalow (Planning Ref: H/2013/0439/RM). This exceptional opportunity allows buyers to create their dream home in a desirable setting, combining generous grounds with excellent connectivity to local amenities, schools, and transport links. Rarely does a site of this quality and potential come to the market in such a prime location.

  • Lavery Mitchell

    Lavery Mitchell

    028 95575 555

Photo Gallery

11DR-site plan.png 11DR-FRONT.png 11DR-FLOOR.png 11DR-site outline.png S11DR-01.jpg S11DR-02.jpg S11DR-03.jpg S11DR-04.jpg

Location

Visit www.laverymitchell.com for further details.